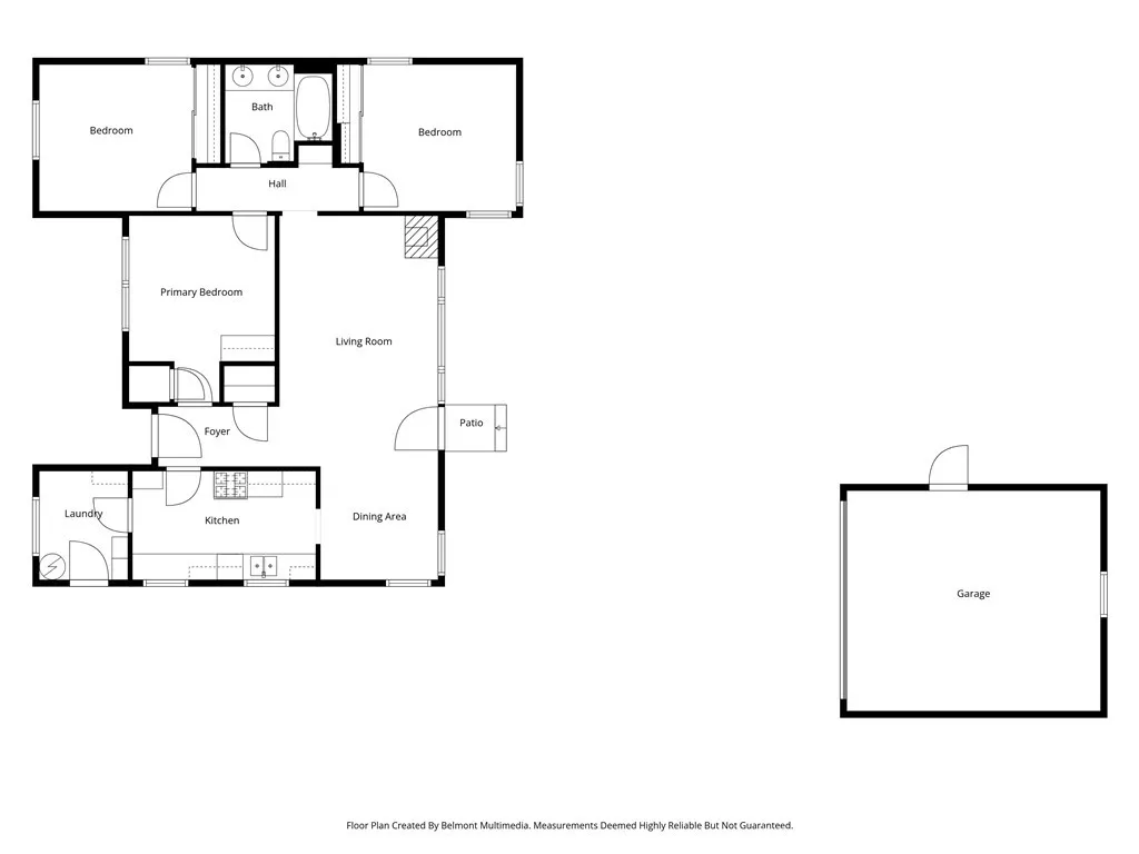
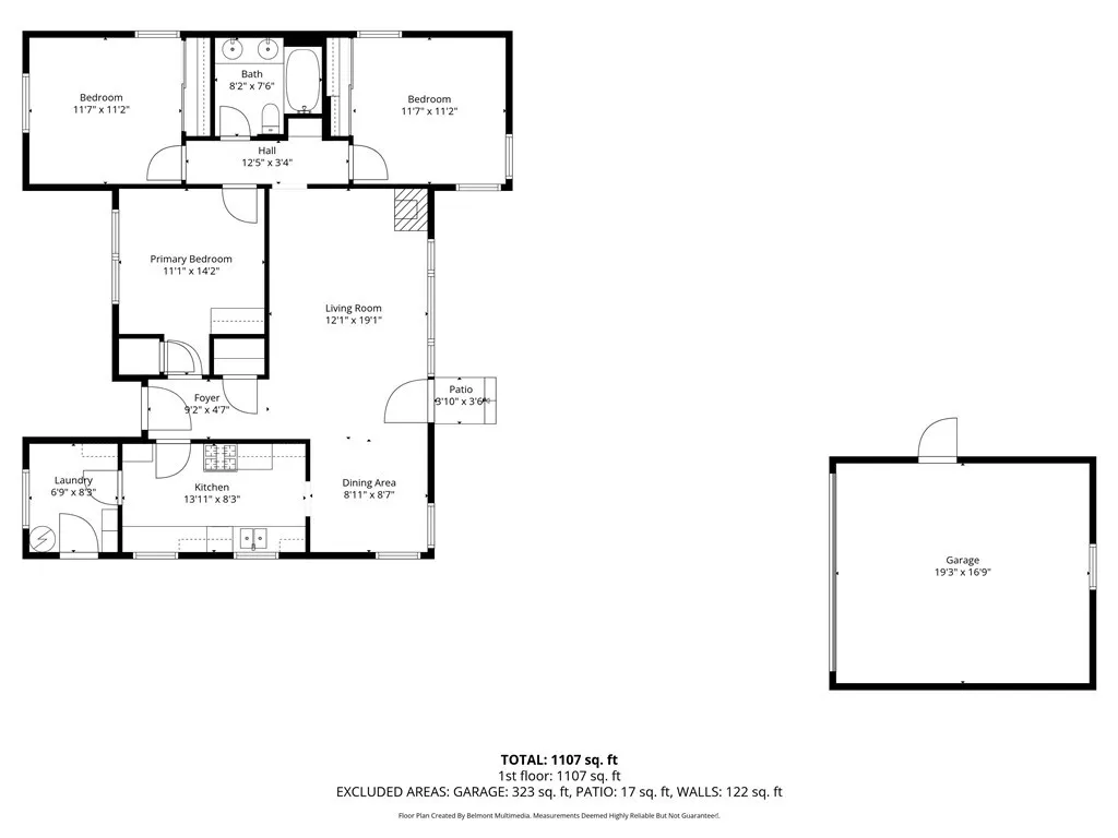
9530 Rives Ave, Downey - Beautifully Updated and Move-In Ready Home! Welcome to this charming 3-bedroom, 1-bath home offering fresh updates and thoughtful improvements throughout. Enjoy fresh interior and exterior paint, beautiful laminate flooring, and new light fixtures that give the home a bright, modern feel. The expansive living room features a cozy fireplace and flows seamlessly to the patio and backyard, creating an ideal space for indoor-outdoor living. A charming dining area is highlighted by a brand-new hanging light fixture, perfect for everyday meals or entertaining. The galley kitchen offers recessed lighting, a new stainless steel stove and dishwasher, and a delightful vintage swing door that adds character. Just off the kitchen is a dedicated laundry room with washer and dryer hookups and ample cabinetry for storage. All bedrooms are generously sized with ample closet space, while the full bathroom features dual sinks. Additional upgrades include a brand-new ducting and heating system, ensuring comfort year-round. Step outside to a welcoming patio and newly landscaped yard, complete with new sprinkler and drip systems for easy maintenance. The front and sides of the home have also been upgraded with new irrigation systems and a timer for effortless care. The property includes central air and heat, a 2-car detached garage with a brand-new door, and a long driveway providing additional parking. Centrally located near golf courses, park, schools, shopping, restaurants, and grocery markets, this home offers easy access to the 710, 5, 605, and 105 freeways - convenient yet comfortably removed from the hustle and bustle. A wonderful opportunity to own a beautifully updated home in the heart of Downey. Some rooms have been virtually staged.
AR26002569
Residential - Single Family, Traditional, 1 Story
3
1 Full
1951
Los Angeles
0.1416
Acres
Public Water
1
Public Sewer
Loading...
The scores below measure the walkability of the address, access to public transit of the area and the convenience of using a bike on a scale of 1-100
Walk Score
Transit Score
Bike Score
Loading...
Loading...
